
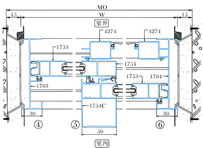
四扇隔音橫拉門:
性能基準:
- 氣密性:通氣量在2m3/hm2以下。
- 水密性:脈動壓50kgf/m2中央值以上。
- 強度性:抗風壓強度240kgf/m2~360kgf/m2。
- 隔音性:35等級(玻璃厚度10mm厚)。
功能特性:
- 安全性:
- 外框附有上止風防盜檔,可由室內控制拆卸內扇,安全無慮。
- 外扇下橫料裝配防落檔,具防盜防落安全效果。
- 紗窗採高彈性塑膠導塊,可增加紗窗向上張力更穩定安全。
- 持久性:
- 內外框四周接觸面採用高級SATOPRENER膠條,保持水密、氣密功能持久,不老化,永久免更換。
- 使用可調式培林輥輪,窗扇拉動輕巧。如使用較厚玻璃8mm以上,則配備雙子星重型培林輥輪組,以防超載易損,能持久免更換。
- 水、氣密性:
- 外框下橫料採上下階梯設計,排水佳大雨不積水。
- 全內壓設計,氣密、水密功能佳。
- 內扇衡料、直料皆採空心及雙空心設計,不變形且密合度佳。
- 內扇可選用三點式連動式把手,當窗扇堅閉時,使用內扇和外框相互迫緊,增加強度、隔音、水密、氣密功能效果。更能發揮淋漓盡致。
- 整體性:
- 最新型等壓設計,為最先進隔音窗之驅。
- 外框與內框之組合採多重空間設計,可增加搭配效果。
- 為加強本系列產品整體性,及配合新建築物之造型,及使用安全之便利性,窗型上無論是搭配固定窗或推射窗皆可。更保有其原有完美性,且不損耗原有性能。
- 可搭配專用格子窗系列產品,以美化造型強化防盜效果。

推開門:
性能基準:
- 氣密性:通氣量在2m3/hm2以下。
- 水密性:脈動壓50kgf/m2中央值以上。
- 強度性:抗風壓強度240kgf/m2~360kgf/m2。
- 隔音性:35等級(玻璃厚度10mm厚)。
產品特性:
- 外框橫料皆採空心設計,結構強度效果特佳。
- 外框下橫料採復式階梯設計,排水迅速效果佳。
- 窗扇及窗框採復式設計,隔音效果更能凸顯。
- 內扇採套筒崁裝,載重力強,窗扇不易下垂,且開啟容易。
- 內扇採內壓式壓條,裝卸容易,美觀大方。
- 推開窗均採用重型不銹鋼四連桿,開啓容易,並可適當依其角度開啟,更可在室內擦拭玻璃。
- 內扇均以空心擠型料,抗耐風壓強度大,安全性較具保障。
- 內、外框雙層膠條,迫緊時隔音效果優。
- 內扇裝配有輥輪式垂輪,使開啟方便容易。
- 推開窗之內扇,均由室內向室外推開,紗窗則選配內開式或隱藏式紗窗。
- 可選用連動把手,使其關閉時,內、外框迫緊,以呈現其高隔音效果。

基本型百葉窗:

加長型百葉窗:

空心加強型百葉窗:



台泥品牌PC耐力板全國第一家通過國內外ISO 9002及CNS 正字標記認證產品